不動産をお探し方

REAL ESTATE 不動産をお探し方

賃貸(事業用)坂出市

“そのまま始められる”が、いちばんの武器。県道沿い・居抜き一棟貸し店舗。

賃料
16.5万円
敷金
3か月
礼金
なし
管理費
なし
所在地
坂出市久米町1丁目
交通
JR予讃線 坂出 徒歩10分
敷地面積
公簿 152.62㎡ (46.16坪)
建物面積
68.59㎡
建物構造
木造
階建
1階建て
築年月
2006年01月
用途地域
商業地域
接道状況
角地:2方道路 南11.0m 公道 接面10.0m 北
契約期間
2年
現況
空家
引渡し時期
相談
駐車場
敷地内あり3台有 無料
設備
トイレ 冷蔵庫 駐車場
取引態様
媒介
備考
■保険等加入 加入要 / 借家人賠償特約付家財保険 2年間
■賃貸保証 加入要 初回保証委託料:賃料等合計額100%、年間保証委託料:賃料等合計額の10%/年が別途必要
■西側駐車場地を利用する場合は別途3万円程度必要(別契約となります)
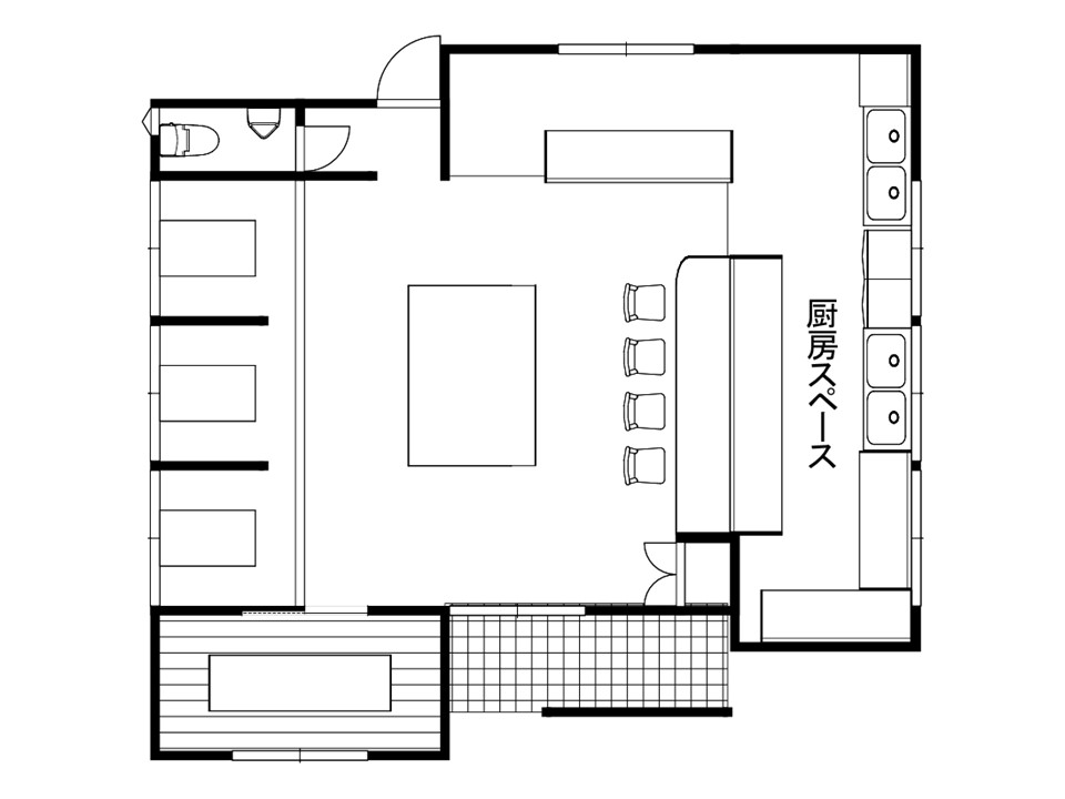
■前テナント業種:焼き鳥
■重飲食可
■居抜き

焼き鳥屋の記憶を、次の繁盛店へ

県道沿いに面した視認性の高い立地、JR坂出駅から徒歩10分。
焼き鳥店の居抜き物件のため、厨房設備・テーブル・椅子が揃っており、初期費用を抑えてすぐに開業が可能です。
重飲食にも対応し、カウンター・座敷・個室があるのでラーメン・居酒屋・焼肉など幅広い業態におすすめ。
無料駐車場3台分あるので来店型店舗にも安心。
地域に根ざした店を始めたい方に、ちょうどいい規模感の一棟貸し店舗です。

★お問い合わせはこちらから
★他の物件を探したい方はこちらから

BACK TO LIST

Real estate 不動産事業

空き家持ち主と移住者・創業者をつなぐ「まち窓口」として、まちに新しいにぎわいを生み出します。地域とつながりづくりもサポートし、人とまちが一緒に育っていく未来をめざしています。※対応エリア 坂出市・綾歌郡宇多津町・丸亀市 そ他エリアご相談ください。

realestate01

不動産をお探し方

「家庭菜園ができる広い家に住みたい!」「お店と住まいを一緒にしたい!」そんな希望に寄り添い、理想暮らしや働き方を叶えるお手伝いをします。

不動産をお持ち方

「家管理が難しい 」「売るべきか悩んでいる」そんなお悩みをお持ち方、【空き家レスキュー隊】にご相談ください。売却や賃貸、リノベーションなど、地域活性化につながるあらゆる可能性を一緒に探ります。

Contact お問い合わせ

レッツのお仕事やご相談についての
お問い合わせはこちらから

PAGE TOP PAGE TOP